“-Re” House together with “-Re” Adapt are two series part of a project in which I review, refine and redesign residential projects available on the Dutch housing market. “-Re” House touches projects that have been completed after the year 2000 and could have been done more efficiently to begin with, while “-Re” Adapt looks at how to better adapt older residential architecture that was designed in a different cultural and historical context.
Architecture is interconnected with culture, society economy and history. As a science as well as an art, architecture has evolved in incredible ways throughout time. There are beautiful and incredible old designs, however the largest number of residential designs would make people cringe today.
We have learned and we have evolved, so it is more than obvious that our designs would too. As a result I do not tackle the designs of old buildings. My target is comprised of apartments built in the last two decades and not really going further. I believe that anything built in the last 10 to 20 years has no excuse in making gross compromises when better options were possible as well as available.
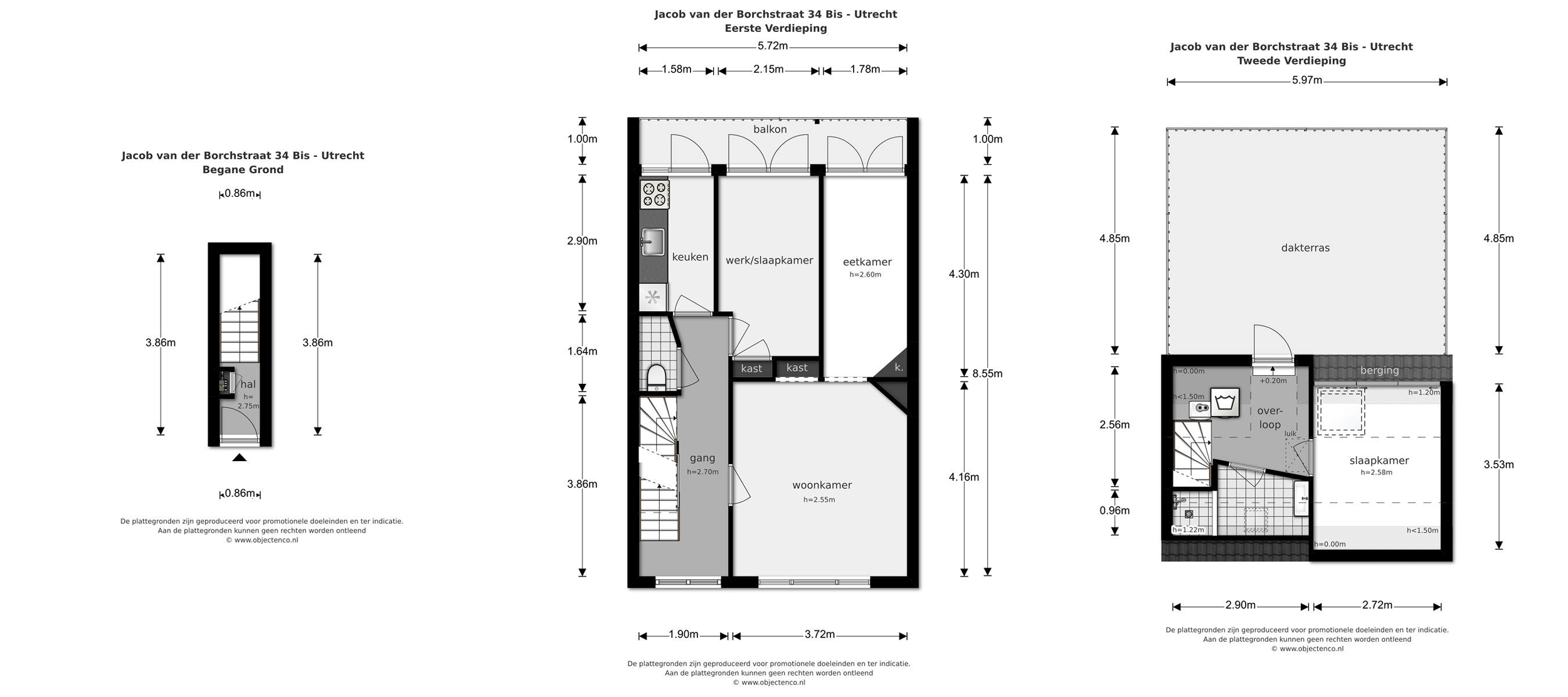
That being said, this apartment is part of a building built in 1935. This is too far back to be part of the usual debates, however, in the Netherlands old buildings located close to the city center are typically used to house students. The traffic is horrendous for cars, the spaces tend to be small and gardens rather tiny if available at all. So a lot of people tend to divide the houses into apartments or simply individually rent the rooms.
This apartment is the result of such a division. The ground floor of the building is an apartment on its own while the first floor and the attic form a second one. As the layout of the individual apartments has been created in rather recent years I feel that there were better options and so I will detail bellow as to why I find the present time division inefficient.
• The relation between the kitchen and the dining area implies traveling round the living room with plates and pots of food. Not the ideal way of setting it up.
• Placing the dining area in the place of the bedroom would have allowed opening the space and/or easier access even if the connection with the living room would not have existed. Of course that could have been done as well.
• It is not the best option to have the bedroom in the corner of the layout and to have to travel through the living space all the time, however that might have been less inconvenient.

My view on the space, as seen bellow, implies the detachment of the bedroom/office and the unification of the rest of the space. Moving the door to the middle of the space allows an even and efficient distribution of the space and of its functions. The dining area can be easily placed in the corner thus benefiting of easy access from both the kitchen and the living space as well as light and a lovely view at the table.
• The living space can use the cozy area to the right as one enters where there is enough space and walls to set up a sitting area, TV space and/or reading space. It allows for easy access to the dining area and great use when guests are involved.
• The disruption of the toilet door can be easily sorted with a sliding door.
• The placement of the bedroom/office on the opposite side of the floor plan means it can be used with ease as an office without intruding in the family life or as a bedroom for a teenager.
• The technical line can not be moved, however it is easily incorporated in the living space.
• I made no serious changes to the top floor. I personally do not see the appeal in the crooked wall of the bathroom so, as the space allows for, I would just straighten it.
Click here for more “-Re” House projects
Click here for more “-Re” Adapt projects

